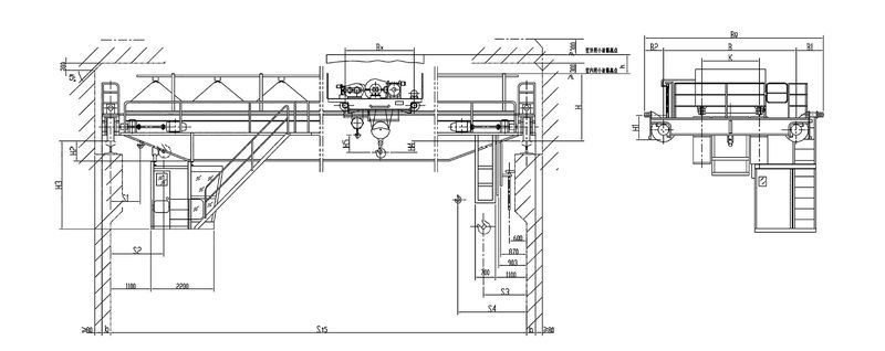
产品描述

QB型防爆桥式起重机所有电机、电器防爆性能符合GB3836.2-2000《爆炸性气体环境用电气设备第2部分:隔爆型“d”》、整机性能符合JB/T5897-2006《防爆桥式起重机》标准之规定,经国家指定的防爆产品检验单位检验合格,取得了《防爆合格证》。防爆标志分别为ExdII BT4、Exd II CT4。
本产品适用于工厂内防爆能力不高于II B或II C级,引燃温度组别不低于T4组的可燃性气体或蒸气与空气形成的爆炸性气体混合物的场所,适用的危险区域为1区或2区(详见GB3836.1-2000)。
本产品一般为地面操作,根据用户需要也可以司机室操作。工作级别为中级。


产品订购








